Property Details
Set within a popular residential area, this attractive two-bedroom terraced home offers an excellent opportunity for first-time buyers or investors looking for a property with scope to enhance. The accommodation is well laid out and provides a comfortable living space with plenty of potential to personalise.
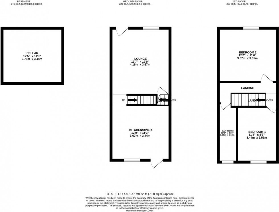
Upon entering, you are welcomed by a well-sized living room, flowing through to a fitted kitchen with ample space for dining. To the first floor are two well-proportioned bedrooms and a family bathroom, with the second bedroom offering flexibility for use as a home office, dressing room or nursery.
To the rear, the property enjoys a pleasant lawned garden, perfect for outdoor seating and family use. A useful cellar beneath the property provides additional storage space. While the home is liveable as it stands, there is clear opportunity for a buyer to modernise and add their own style over time.
Ideally located, Osborne Road sits within comfortable walking distance of Stockport town centre, providing easy access to a wide selection of shops, restaurants and leisure facilities. Excellent commuter links are close by, including Stockport railway station and regular bus services. Cale Green Park is also within easy reach, along with reputable local schooling such as Cale Green Primary.
Viewings are highly recommended to appreciate the space and potential on offer. Please contact Spencer Harvey to arrange your appointment.
Living Room
4.15m x 3.67m
Kitchen Diner
3.67m x 3.44m
Bedroom One
3.44m x 2.51m
Bedroom Two
3.67m x 3.35m
Bathroom
3.66m x 1.16m
Anti Money Laundering Checks
Please be advised that, in accordance with legal requirements and to maintain compliance with Anti-Money Laundering regulations, prospective buyers are obligated to undergo AML checks upon acceptance of their offer for the property listed in this brochure.
These AML checks are a mandatory part of the property transaction process and are designed to prevent and detect potential money laundering activities. The cost associated with each AML check is £30 per applicant, and this fee will be charged to the respective individuals undergoing the checks.
Please note that failure to comply with these AML checks may result in delays or complications in the completion of the property transaction.







