Property Details
1 1 1
Available March! Unfurnished - Ideal Location
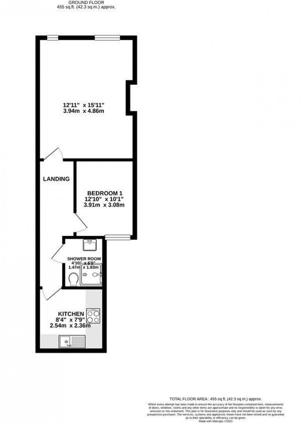
This well-sized property offers a welcoming living space, featuring a spacious living/dining room, a fully-equipped kitchen, a generous bedroom, and a modern shower room.
The flat is located on the first floor, accessible via stairs, providing a comfortable and private living environment.
Conveniently situated, the property benefits from easy access to excellent local amenities, with fantastic commuter routes, motorway networks, and a nearby train station, making it ideal for those seeking a great location with excellent transport links.






