Property Details
**AVAILABLE FEBRUARY**
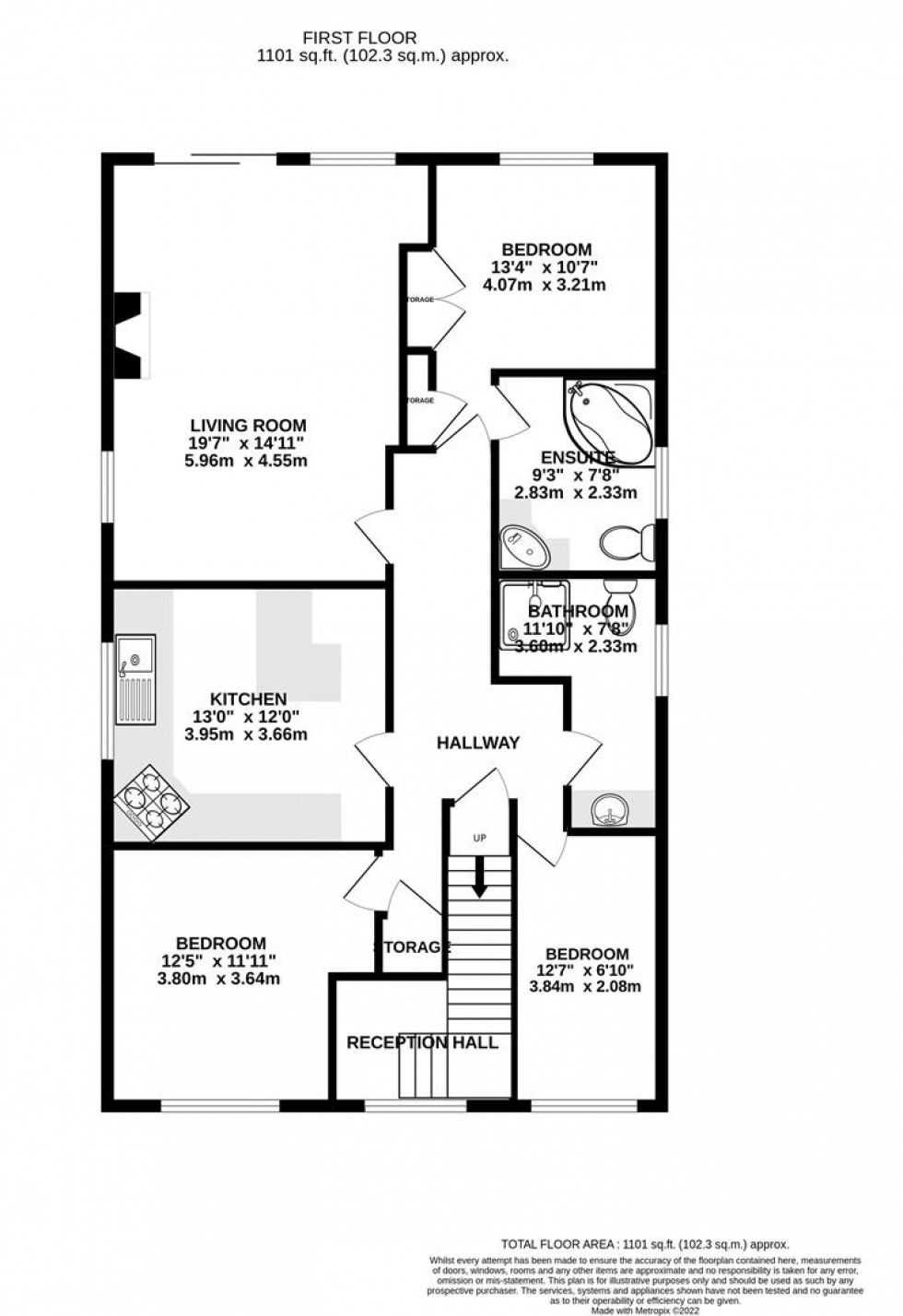
This beautifully presented 3-bedroom, 2-bathroom First floor flat flat is located in the highly sought-after area of Marple, located close to Marple town centre and the Peak Forest Canal.
The property offers modern living with a fully fitted kitchen, complete with white goods, providing convenience and style.
The spacious living area benefits from a Juliette balcony, allowing ample natural light and offering pleasant views. Both bathrooms are contemporary and finished to a high standard.
Ideally situated near local amenities, parks, and transport links, this flat is perfect for professionals, couples, or small families looking for comfort and elegance in a prime location.
The Drive is not included with this flat.
It has an EPC Rating of C and Council Tax Band of D.
Master Bedroom
This fantastic double room with built in wardrobe and en-suite is neutrally decorated
Bedroom Two
A bright and spacious double bedroom to the front elevation of the property
Bedroom Three
A good size bedroom currently being utilised as an office space
Living room
This room has a beautiful Juliette balcony as well as a feature fireplace, the room itself is very spacious and has chandeliers with original features
Main Bathroom
A corner shower, wash hand basin and WC, this room is fitted with wooden flooring
En-suite
A corner bath with WC and wash hand basin featured tiles
Kitchen/Diner
A roomy kitchen diner with a breakfast bar, integrated white goods and plenty of cupboard space

