Property Details
Spencer Harvey are delighted to bring to the market this fantastic three bedroom property, offering a wonderful opportunity for buyers looking to modernise and add their own stamp.
Situated in a highly sought-after area of Stockport, the property occupies a generous plot and is not overlooked, providing a great sense of privacy both inside and out.
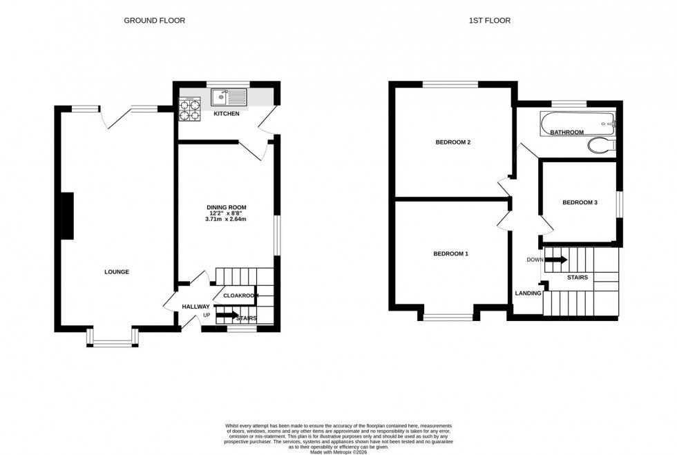
The accommodation briefly comprises two well-proportioned reception rooms, offering flexible living space ideal for family life or entertaining. The kitchen provides further potential for improvement and reconfiguration, subject to requirements.
To the first floor are three good sized bedrooms along with a family bathroom, making this an ideal home for growing families or those looking for additional space.
Externally, the property benefits from a good sized plot, with ample outdoor space to enjoy or develop further, again subject to the necessary consents. A garage adds to the appeal.
Offered to the market with excellent potential throughout, this property is perfectly positioned close to local amenities, schools and transport links, making it an ideal investment or long-term family home.
Early viewing is strongly recommended to fully appreciate the location, space and potential on offer.
Living Room (3.09 x 6.15m (10'1" x 20'2"))
3.09 x 6.15m
Spacious Living Room with door through to rear garden and bay window
Dining Room (2.64 x 3.17m (8'7" x 10'4"))
2.64 x 3.17m
With access from the hallway and leading to the kitchen
Kitchen (2.64 x 1.51m (8'7" x 4'11"))
2.64 x 1.51m
The kitchen is situated at the rear of the property, with views over the rear garden and door to the side of the property.
Bedroom One (3.09 x 3m (10'1" x 9'10"))
3.09 x 3m
Double bedroom with feature bay window
Bedroom Two (3.2 x 3m (10'5" x 9'10"))
3.2 x 3m
Double bedroom with views over rear garden
Bedroom Three (2.07 x 2.21m (6'9" x 7'3"))
2.07 x 2.21m
Single bedroom/office
Family Bathroom (2.75 x 1.47m (9'0" x 4'9"))
2.75 x 1.47m
Family bathroom with shower over bath

