Wellington Road North, Heaton Chapel, Stockport
Per month, £950 PCM, Tenancy Info To Let


Property Details

1 1 1

** STUNNING ONE BEDROOM APARTMENT **AVAILABLE NOVEMBER**

This immaculate ONE BEDROOM, top floor apartment is situated in highly desired area and has just been refubrished! The property boasts of central location on the main road A6 offering regular transport links to both Manchester and Stockport Town Centre making it perfect home for a young professional or professional couple.

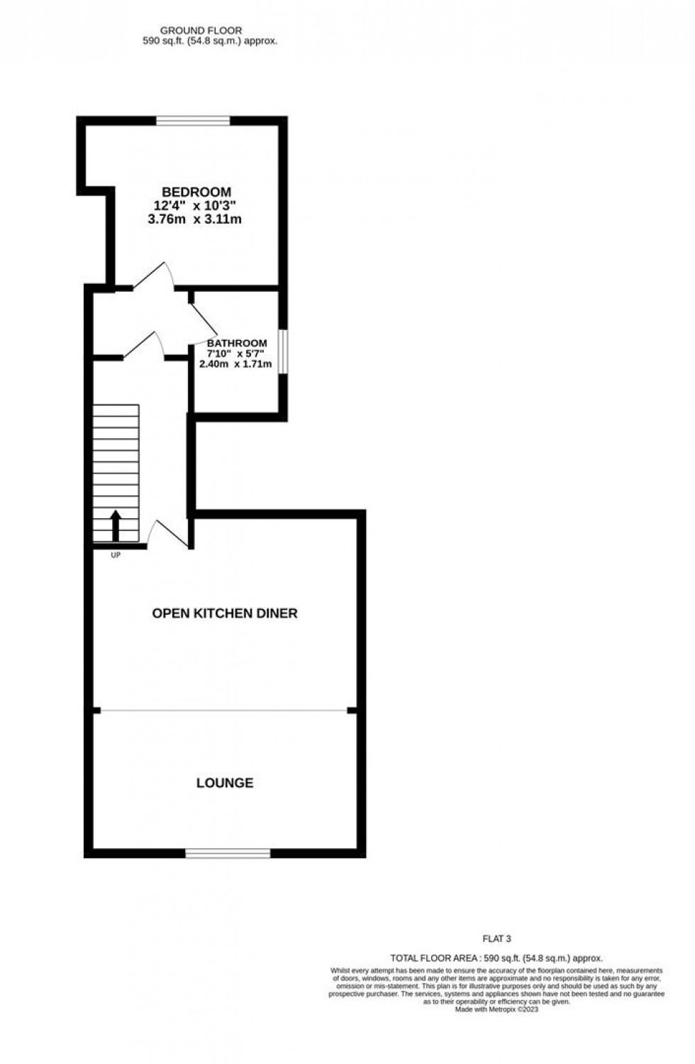
This beautiful home comprises of; a SPACIOUS lounge, open plan fully fitted kitchen with appliances, a LARGE DOUBLE bedroom and MODERN bathroom.

Externally on street parking. Available on a PART FURNISHED basis NOW!! Viewing comes HIGHLY recommended. Council Tax Band A. EPC D.

** Holding deposit of 1 weeks rent will be requested to be paid in order to reserve the property prior to let agreed.

Kitchen (5.08 x 2.6 (16'7" x 8'6"))

Good size open kitchen dining room with wall and base units, 4 ring gas cooker and oven with extract fan above, washing machine, fridge and freezer. The open plan space benefits from radiator and laminate wood floor.


Lounge (5.08 x 2.1 (16'7" x 6'10"))

Good size lounge with uPVC window to front elevation.


Double bedroom (3.2 x 3.1 (10'5" x 10'2"))

Good size double bedroom with radiator and uPVC window to rear aspect.


Bathroom (1.7 x 2.4 (5'6" x 7'10"))

Beautifully presented, modern three piece bathroom consisting of; shower cubicle, low level WC, wash hand basin with cabinet below. UPVC window and black towel radiator.


External

The property benefits from on street/off-road parking.


Entrance Hall (1.7x.80 (5'6"x.262'5"))

The property greets you with brief entrance hall.


Location