Granada Road, Denton
£370,000 Freehold For Sale


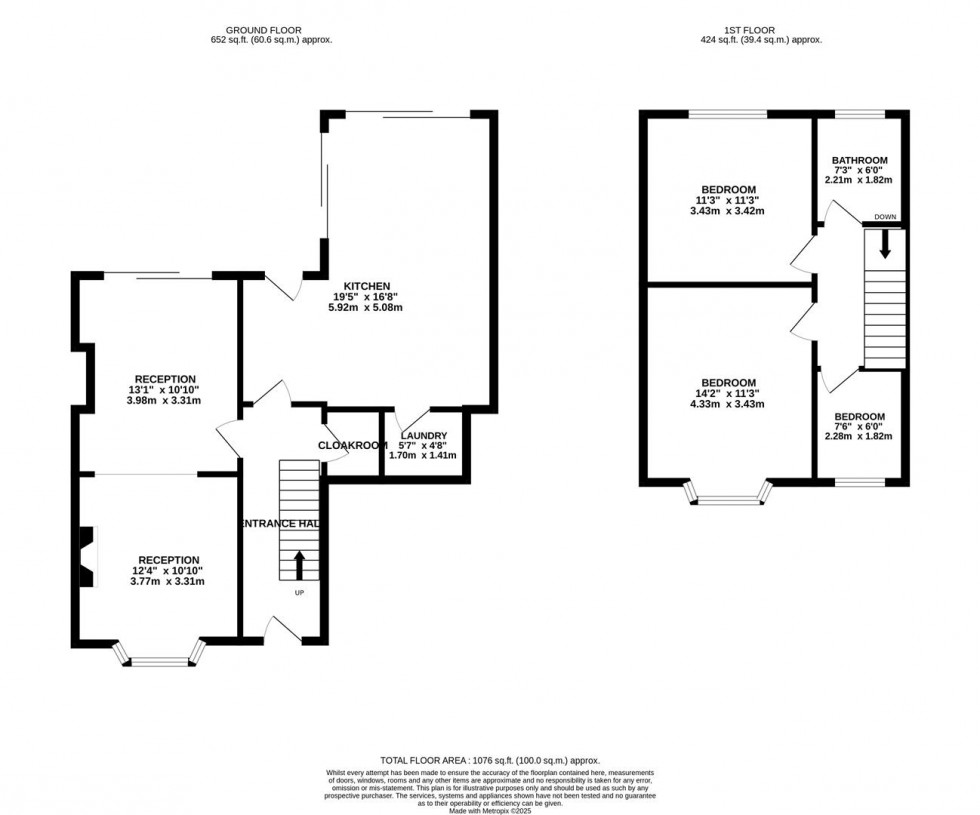
Property Details

3 2 1

Stunning Extended 3 Bedroom Semi-Detached Home in Sought-After Dane Bank

This beautifully presented three-bedroom semi-detached property, set on a generous corner plot in the ever-popular Dane Bank area, offers the perfect blend of style, space and functionality – ideal for modern family living.

The property has been thoughtfully extended to create a truly impressive open-plan kitchen, dining and living space, complete with a striking kitchen design and floor-to-ceiling glass sliding doors that flood the room with natural light and provide seamless access to the garden. A separate utility room adds convenience and practicality.

To the front of the home, there is a spacious living/dining room featuring a charming fireplace and further sliding doors opening directly onto the private rear garden, offering an excellent second reception space for both relaxation and entertaining.

Upstairs, the property boasts three well-proportioned bedrooms and a contemporary family bathroom.

Externally, the house sits proudly on a corner plot with a generous garden, ideal for families and outdoor entertaining. There is also a garage, providing additional storage or parking.

Situated in one of Dane Bank’s most desirable locations, this property is perfectly placed for schools, local amenities, transport links and green spaces.

Kitchen (5 x 5.9m (16'4" x 19'4"))

5 x 5.9m
Stunning contemporary kitchen with large island. White silestone worktops and 5 burner gas hob. Door through to utility room.


Reception (7.7 x 3.3m (25'3" x 10'9"))

7.7 x 3.3m
Large open plan reception with views over the front garden and sliders through to rear garden.


Bedroom One (3.4 x 4.3m (11'1" x 14'1"))

3.4 x 4.3m
Double bedroom with a range of fitted wardrobes


Bedroom Two (3.4 x 3.4m (11'1" x 11'1"))

3.4 x 3.4m
Double bedroom with views over rear aspect


Bedroom Three (2.2 x 1.8m (7'2" x 5'10"))

2.2 x 1.8m
Single bedroom


Bathroom (1.8 x 2.2m (5'10" x 7'2"))

1.8 x 2.2m
Three piece white suite with shower over bath, floor to ceiling tiles.


Utility Room (1.7 x 1.4m (5'6" x 4'7"))

1.7 x 1.4m
Space for washing machine and dryer


Anti Money Laundering Checks

Please be advised that, in accordance with legal requirements and to maintain compliance with Anti-Money Laundering regulations, prospective buyers are obligated to undergo AML checks upon acceptance of their offer for the property listed in this brochure.

These AML checks are a mandatory part of the property transaction process and are designed to prevent and detect potential money laundering activities. The cost associated with each AML check is £30 per applicant, and this fee will be charged to the respective individuals undergoing the checks.

Please note that failure to comply with these AML checks may result in delays or complications in the completion of the property transaction.


Location