Crosby Street, Cale Green, Stockport
Per month, £1,100 PCM, Tenancy Info To Let


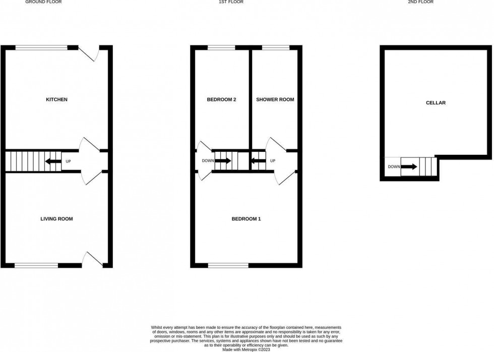
Property Details

2 1 1

**AVAILABLE OCTOBER** RECENTLY RENOVATED** TWO BEDROOM HOUSE**

Recently Renovated two bedroom house offering a modern, light and surprisingly spacious property. In brief comprises of spacious lounge, leading on to a new kitchen.

The garden is patio and AstroTurf so easily maintained!

To the first floor there are two double bedroom and a modern fitted three-piece Jack and Jill bathroom suite , the property benefits from gas central heating as well as being fully double glazed and newly carpeted throughout.

Crosby Street is an attractive and sought after residential street near to the Cale Green conservation area. There is a range of local shops at Shaw Heath and a more extensive range at Davenport. The property lies equidistant between Davenport and Stockport mainline train station affording rapid nationwide travel.

Living Room (3.91m x 3.43m) (12'10" x 11'3") ))

A newly renovated room with new grey carpets and recently decorated


Kitchen (3.89m x 3.76m (12'9" x 12'4"))

Brand new fitted kitchen with neutral flooring and white high gloss units


Master Bedroom (3.89m x 3.45m (12'9" x 11'4 ))

Excellent DOUBLE bedroom with high ceilings, sash windows to front, radiator, central chimney breast. Door leading to shower room


Second bedroom (3.76m x 2.11m (12'4" x 6'11"))

Fitted louvre fronted cupboard with hanging space shelving and wall mounted gas fired Combi boiler for central heating and domestic hot water and further high-level storage cupboard.


Bathroom (3.76m x 1.30m (12'4" x 4'3"))

New bathroom suite with modern shower over the bath and vanity style basin


External

A patio and astoturfed garden


Location