Louisa Mews, Denton
Asking price, £260,000 Freehold For Sale


Property Details

4 1 2

Stunning 4-Bedroom Modern Mews Home – Dane Bank

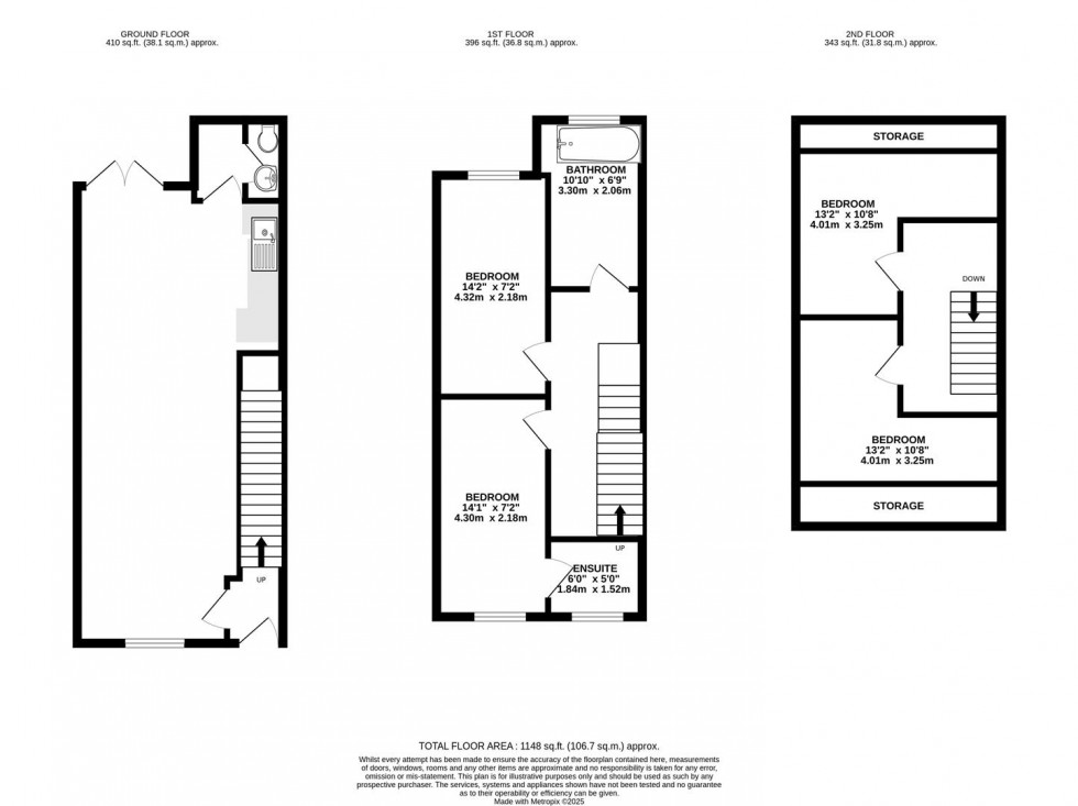
Situated in the ever-popular Dane Bank area, this well presented four-bedroom home offers stylish, versatile living set across three spacious floors.
The property boasts a bright open-plan living, dining and kitchen area, complete with modern fittings and patio doors leading directly onto the rear garden, which is mainly laid to lawn – perfect for families and entertaining. A separate utility room and downstairs W.C. add further practicality.
Upstairs, the home continues to impress with a generously sized main bedroom featuring a private en-suite, along with three further bedrooms and a modern family bathroom.
Externally, the garden provides a safe and sunny retreat, ideal for children or those who enjoy outdoor living.
With its contemporary layout, spacious accommodation, and sought-after location close to schools, transport links, and local amenities, this property is perfect for growing families or professionals alike.

Open Plan Kitchen Living Room (8.95 x 3.9 (29'4" x 12'9"))

Open plan living room, dining room, kitchen. Patio doors through to enclosed rear garden. Utility room and downstairs WC


Bedroom One (4.3 x 2.1 (14'1" x 6'10" ))

Bedroom with en-suite shower room, views over front aspect


Bedroom Two (4.3 x 2.1 (14'1" x 6'10" ))

Double bedroom with views over rear aspect


Bathroom (3.2 x 1.7 (10'5" x 5'6" ))

Bathroom with 3 piece white suite, shower over bath


Bedroom Three (4.0 x 3.2 (13'1" x 10'5"))

Double bedroom with velux style window and storage in the eaves


Bedroom Four (4.0 x 3.2 (13'1" x 10'5"))

Double bedroom with velux style window and eaves storage


Location